Villamartin / P7728
Exclusivo complejo residencial de obra nueva en orihuela costa
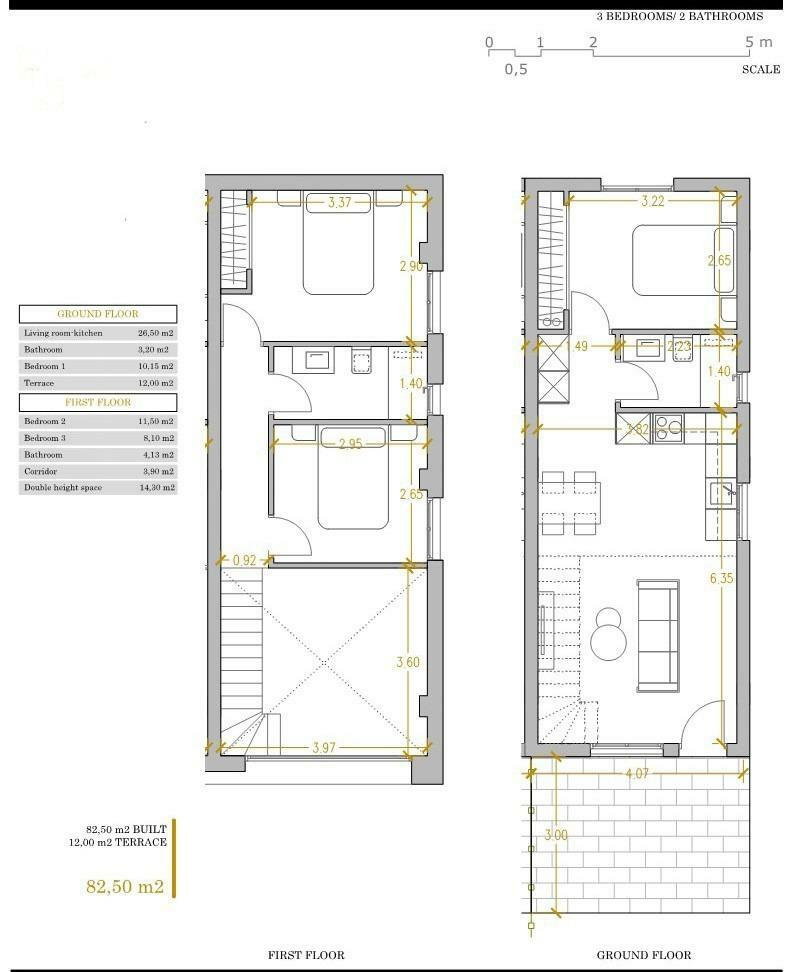
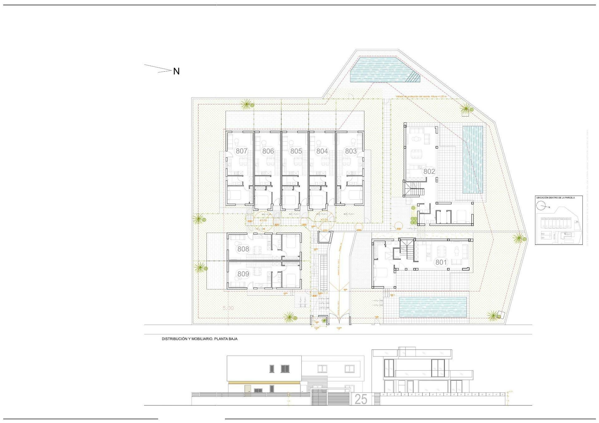
Casa adosada
3
2
93m2












