Villamartin / P7727
Exclusivo complejo residencial de obra nueva en orihuela costa
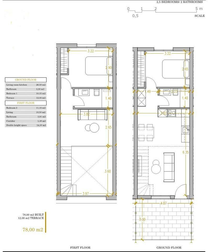
Casa adosada
2
2
93m2











