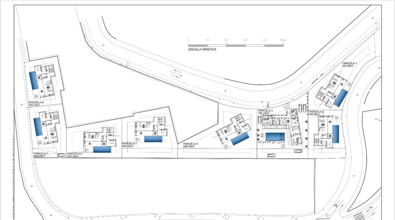
Rojales / Ciudad Quesada / P7598
Villas modernas de lujo con vistas al campo de golf en ciudad quesada
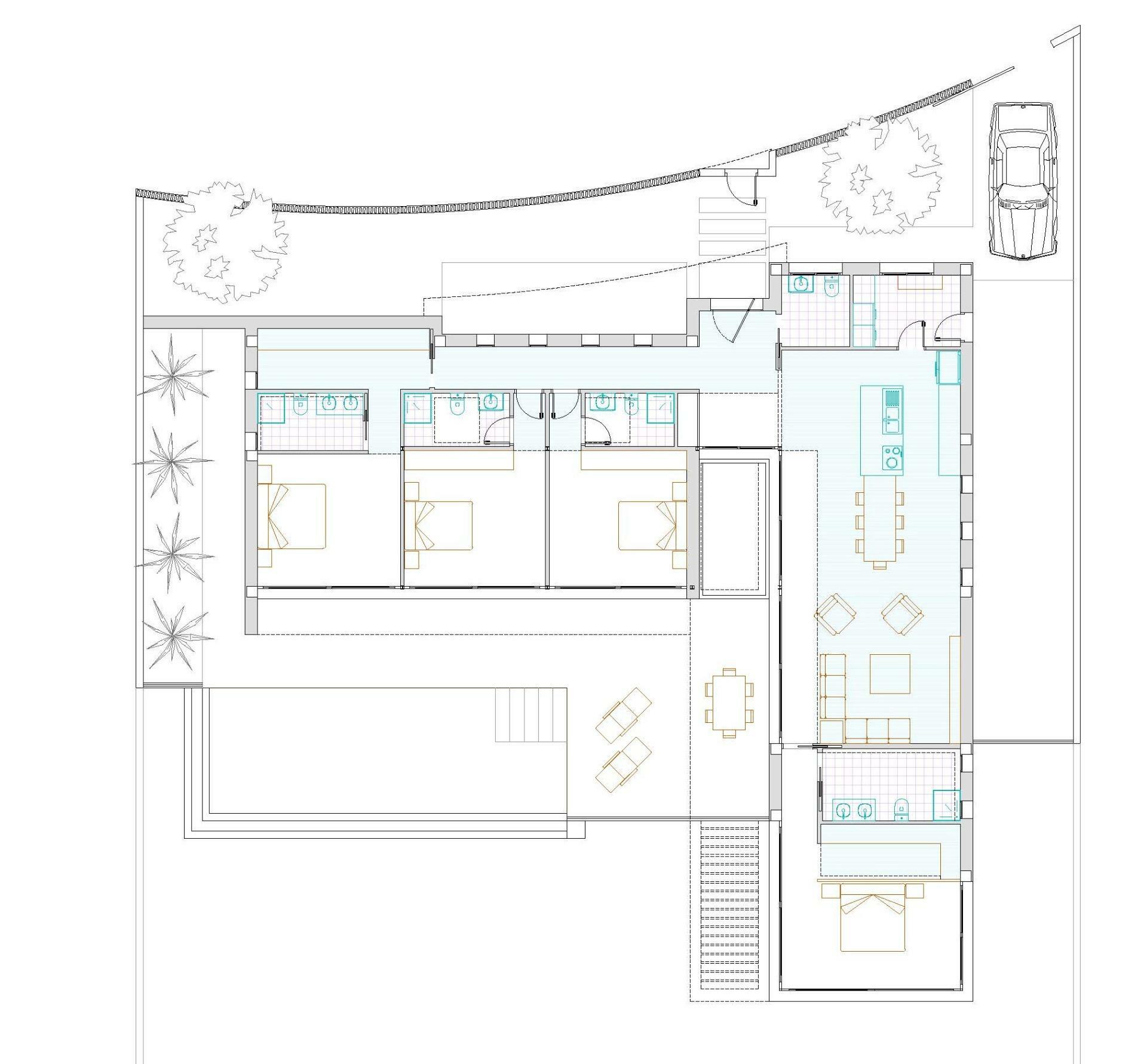
Villa
Ciudad Quesada
5
5
300m2
























