Torrevieja / Torrevieja / P3727
Complejo residencial de obra nueva en punta prima
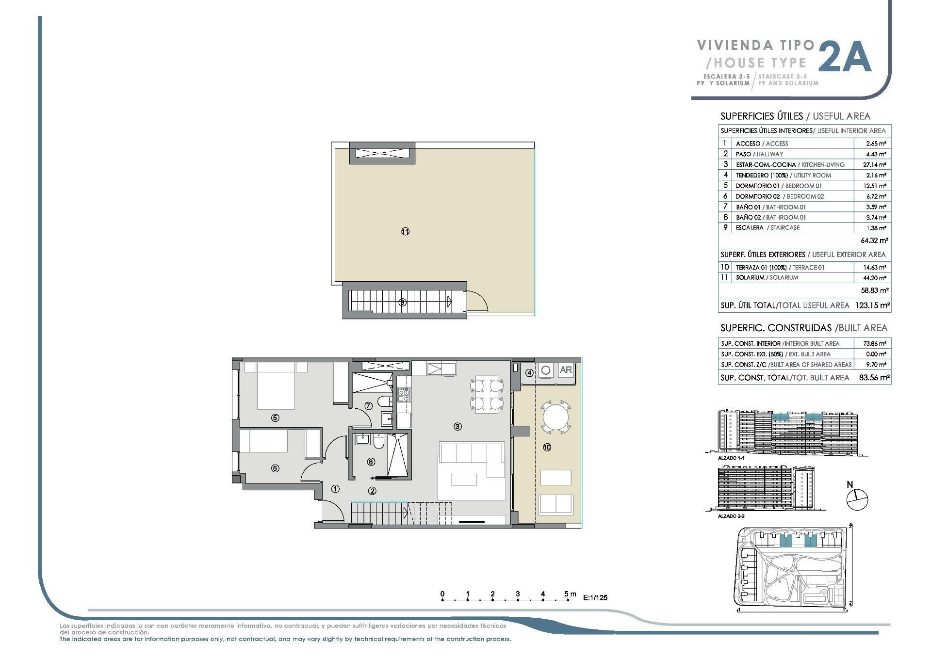
Ático
Torrevieja
2
2
74m2


































