Bigastro / P32403
Promoción con tan solo 2 viviendas adosadas de obra nueva en bigastro.
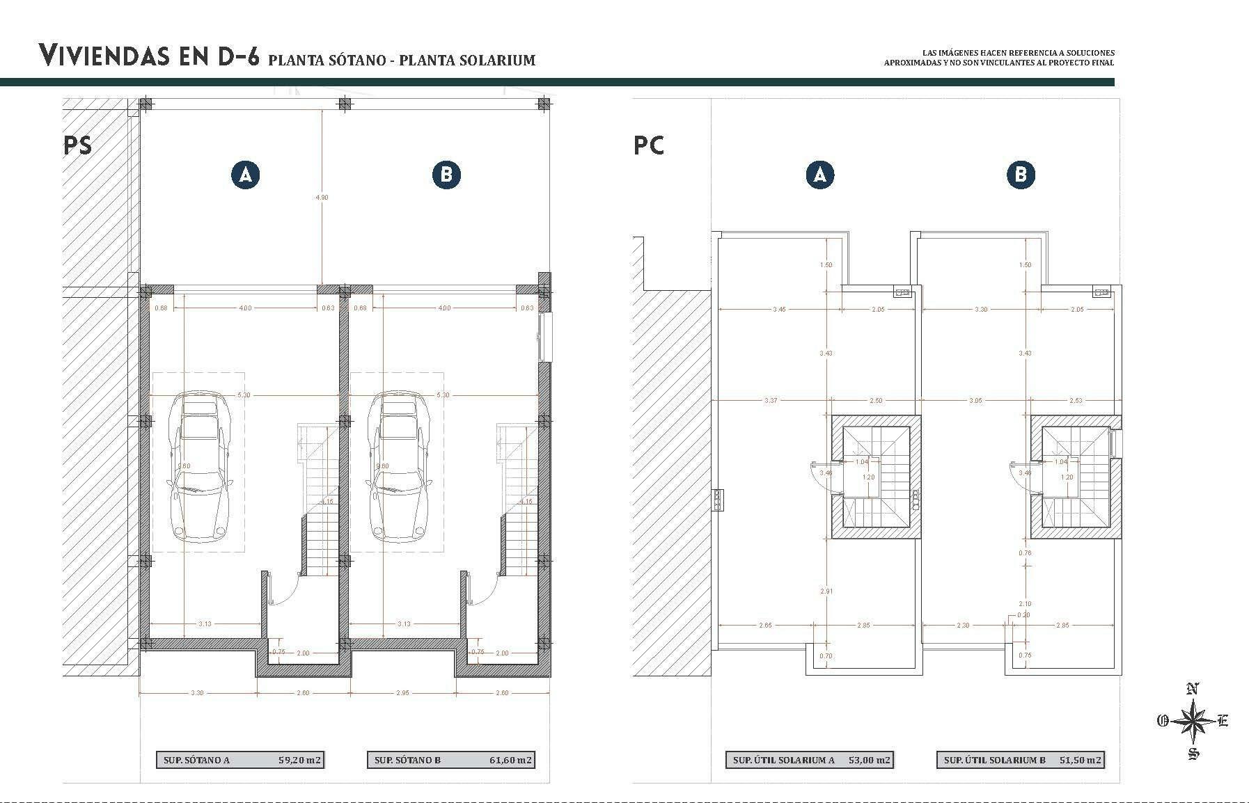
Casa adosada
3
2
163m2

























