Benijófar / P32203
Villas pareadas de lujo de nueva construcción en benijófar – costa blanca living
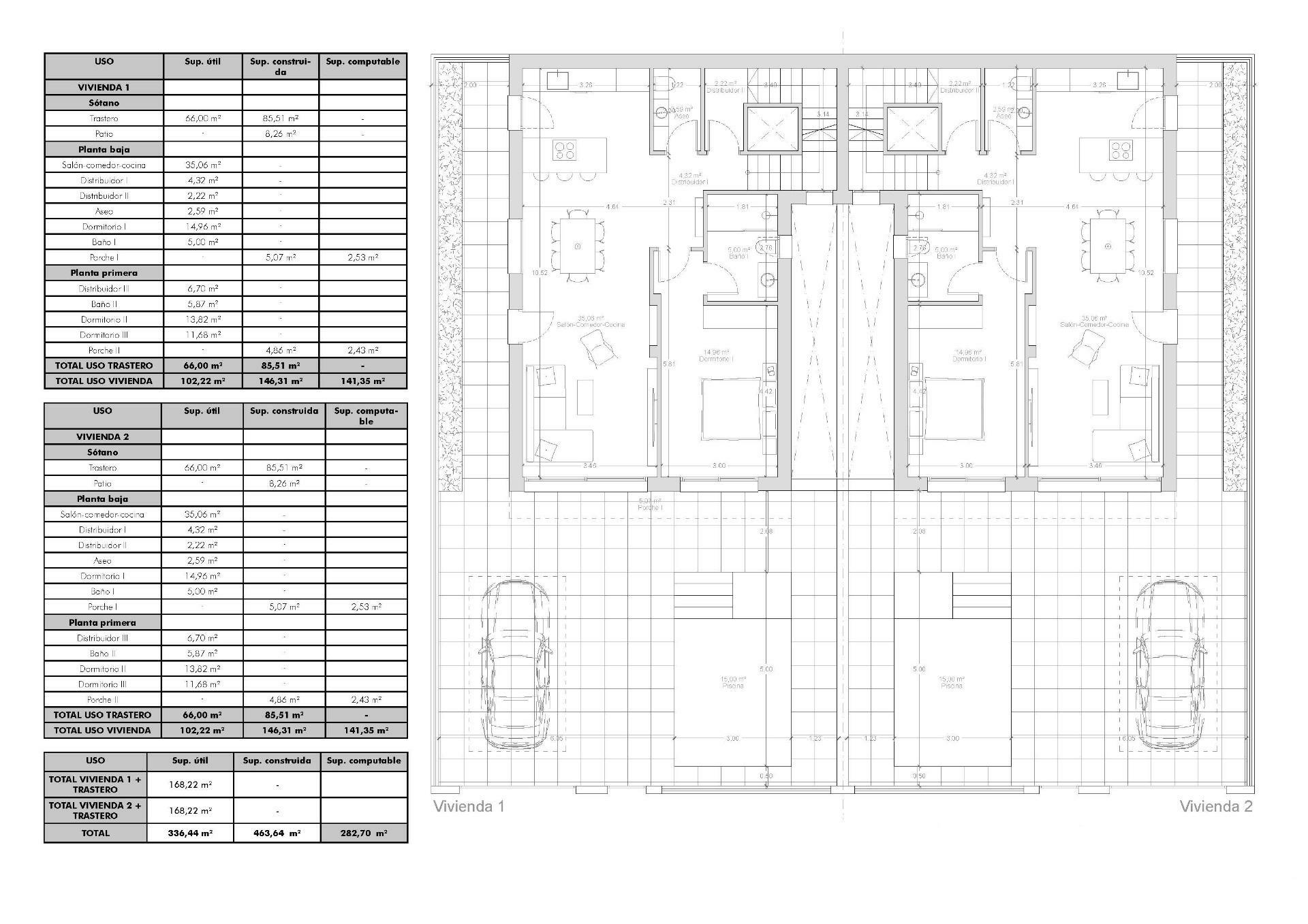
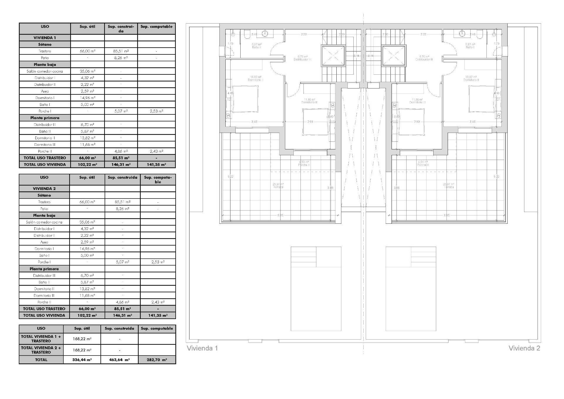
Villa
3
3
141m2
Propiedades similares
Benijófar
399.900 €
Modernas villas independientes en monteazul benijófar con piscina y solárium opcionales
Ref: P32307
Ver propiedad309.900 €
Apartamentos de obra nueva en benijófar – diseño, confort y ubicación privilegiada
Ref: P32133
Ver propiedad











































