Torrevieja / Torrevieja / P1797
Complejo residencial de obra nueva en punta prima
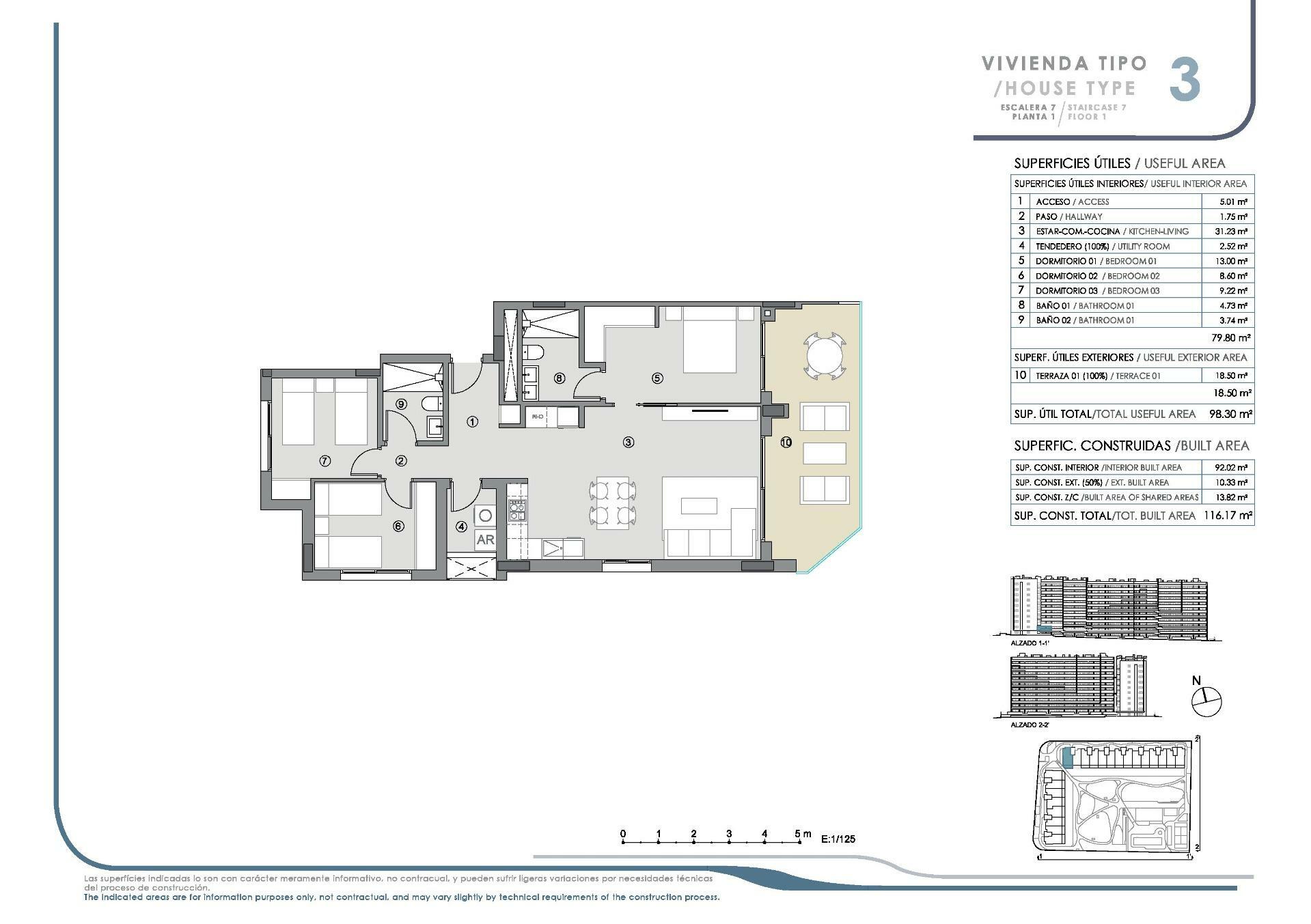
Apartamento
Torrevieja
3
2
92m2


































