San Miguel de Salinas / San Miguel de Salinas / P1756
Villas de obra nueva en san miguel de salinas
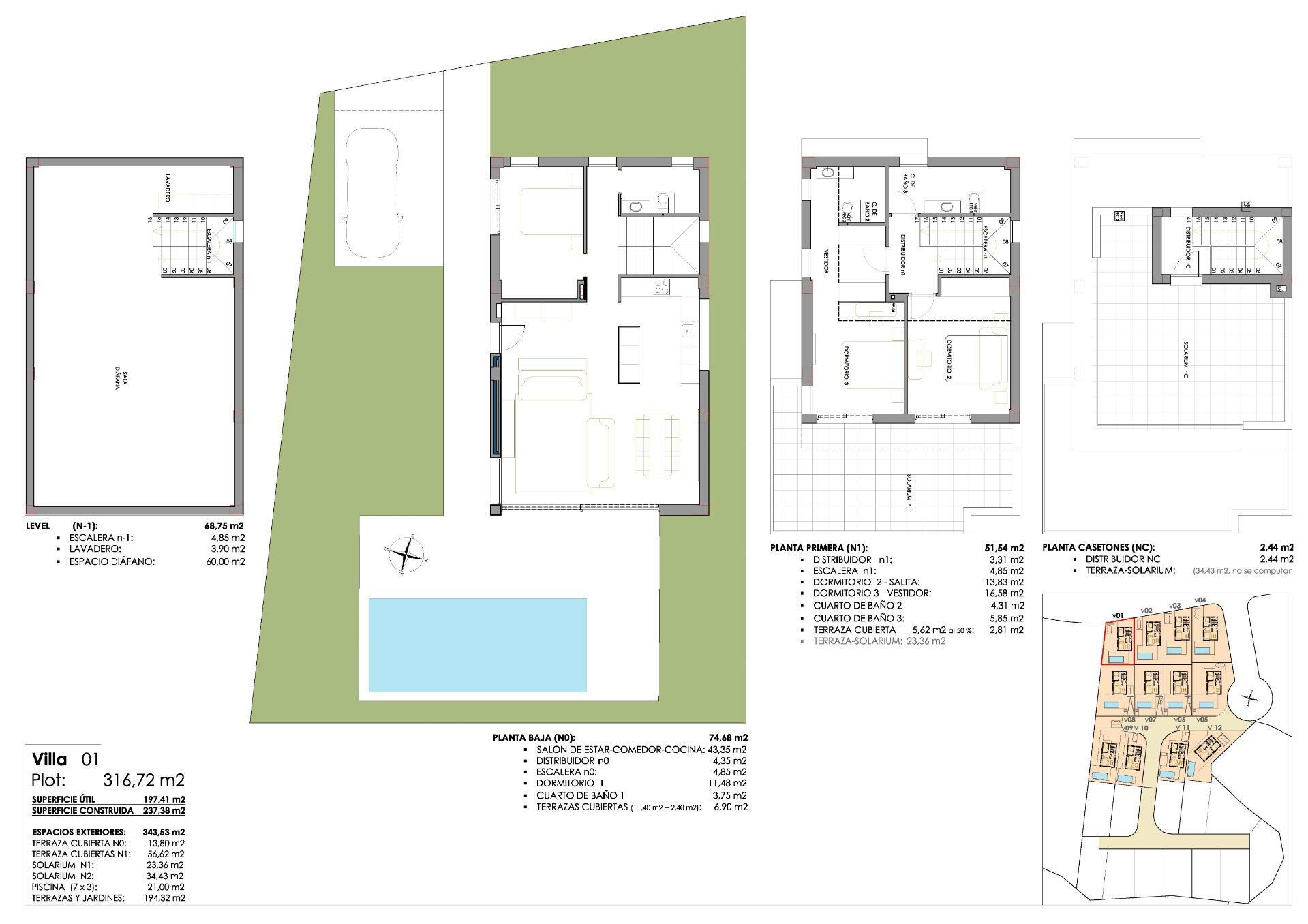
Villa
San Miguel de Salinas
3
3
237m2
Propiedades similares
San Miguel de Salinas
739.000 €
Moderna villa de nueva construcción con vistas abiertas en ciudad de las comunicaciones, san miguel de salinas
Ref: P32466
Ver propiedad










